![]()
2016年5月竣工
東京都 YT邸
断熱改修及びほぼ全館リフォーム
築30年以上のハウスメーカーの家
YTさんの希望は、まず断熱改修をすること。冬の寒さがとてもお辛いとのこと。そこでまずは現況の断熱材の状態を調べた。当時の図面上では外周壁に断熱材が入っていることになっていたが、コンセントBOXを外し、中の様子を探ったが、断熱在らしきものは見当たらなかった。施主の話では入れてないと思うとのこと。当時の見積書を見ると、断熱材が48㎡とあった。ちょうど建築面積分くらいだ。2階天井をユニットバスの点検口から除くと、断熱材があった。断熱は2階天井裏のみ入れられているようだった。
リフォーム前外観
工事内容は、外周壁、1階床、2回天井に断熱材を入れ、サッシを複層ガラスに入れ替える断熱工事と、浴室と2階洗面脱衣室を除く部分のリフォームだ。メーカー独自のモジュールで、通常のサッシの使用が困難だったためと外壁材の一部補修と窓形状変更に伴う取り換えも必要だったため、外壁とサッシ、玄関ドアはハウスメーカーにお願いし、内部のリフォームは工務店にお願いすることにした。
建物の構造は軽量鉄骨造。外周壁内を床下から空気が流れるようになっているため、外張り断熱では効果がなく、充填断熱をすると壁内を流れる空気を止めてしまい、鉄骨と外壁パネルの接触部分での熱橋による結露が心配される。この2点から、今回は外周壁室内側に断熱材を張る内張り断熱の方法をとることにした。石膏ボードの裏に20mmの高性能断熱材が張られた製品があり、既存の石膏ボードの上に張るというものを使用した。その分、室内側が30mm狭くなってしまうが、了解していただけた。1階床は根太のないパネル式の下地だったので、すべて撤去し、根太を入れ、断熱材も入れた。2階天井は、既存の断熱材をそのまま残し、さらに新しい断熱材を入れ込んだ。
リフォーム後外観
建物データ
構 造:軽量鉄鋼造2階建
面 積:1階 48㎡ 2階 48㎡
主な仕上材:
屋 根:コロニアル
外 壁:外壁パネル一部取り換え、塗装
天 井:ビニールクロス
内 壁:ビニールクロス
床 :フローリング、クッションフロア
*お願い:当ホームページの記事及び写真の転用はご遠慮ください。
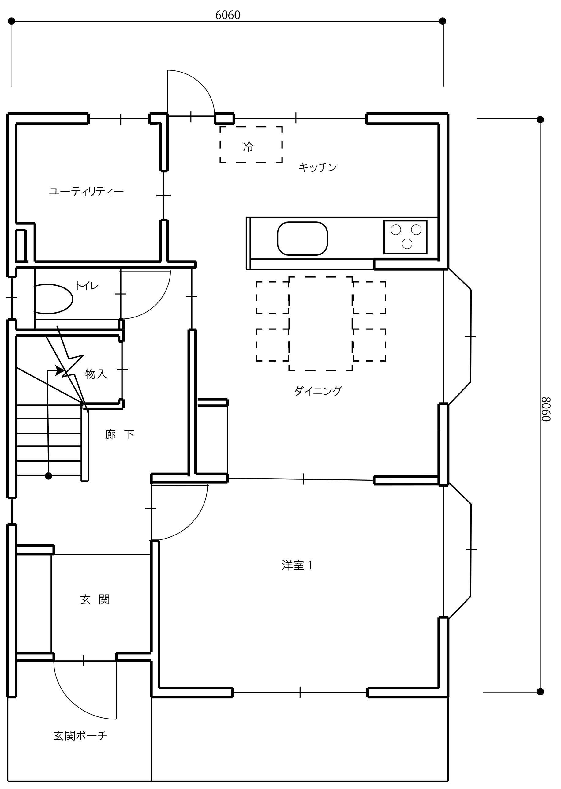
❖Before
ダイニング・キッチン・ユーティリティ

南側洋室とは引き戸で仕切られていた。洋室はリビングを想定していたようだ。

ユーティリティは結構広くとられていた。入口は折れ戸。
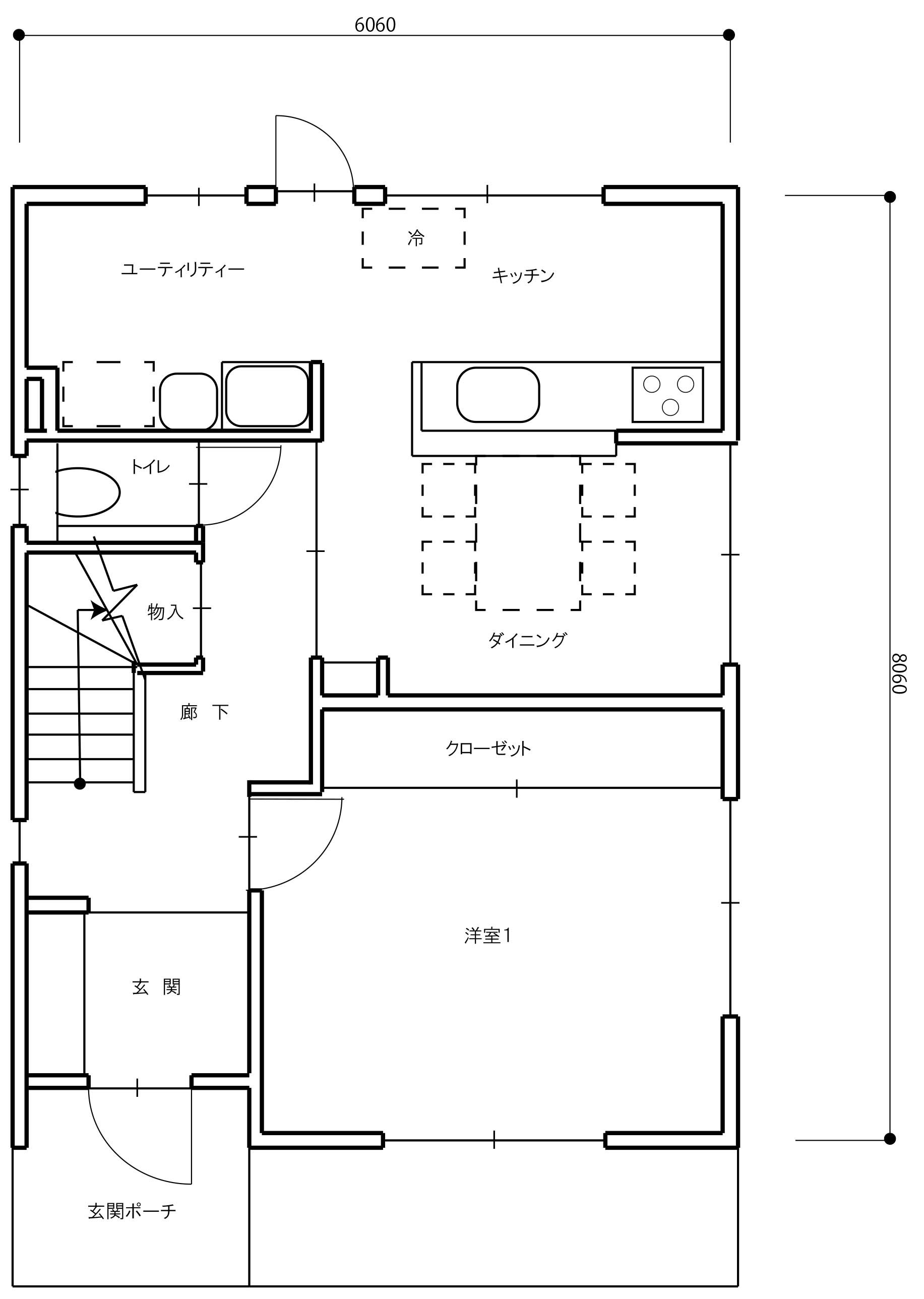
■洋室1
壁面いっぱいのクロゼットを設置。
*
南側の掃き出し窓を腰窓に変更。窓下に低め収納やドレッサーがおける。
BEFORE
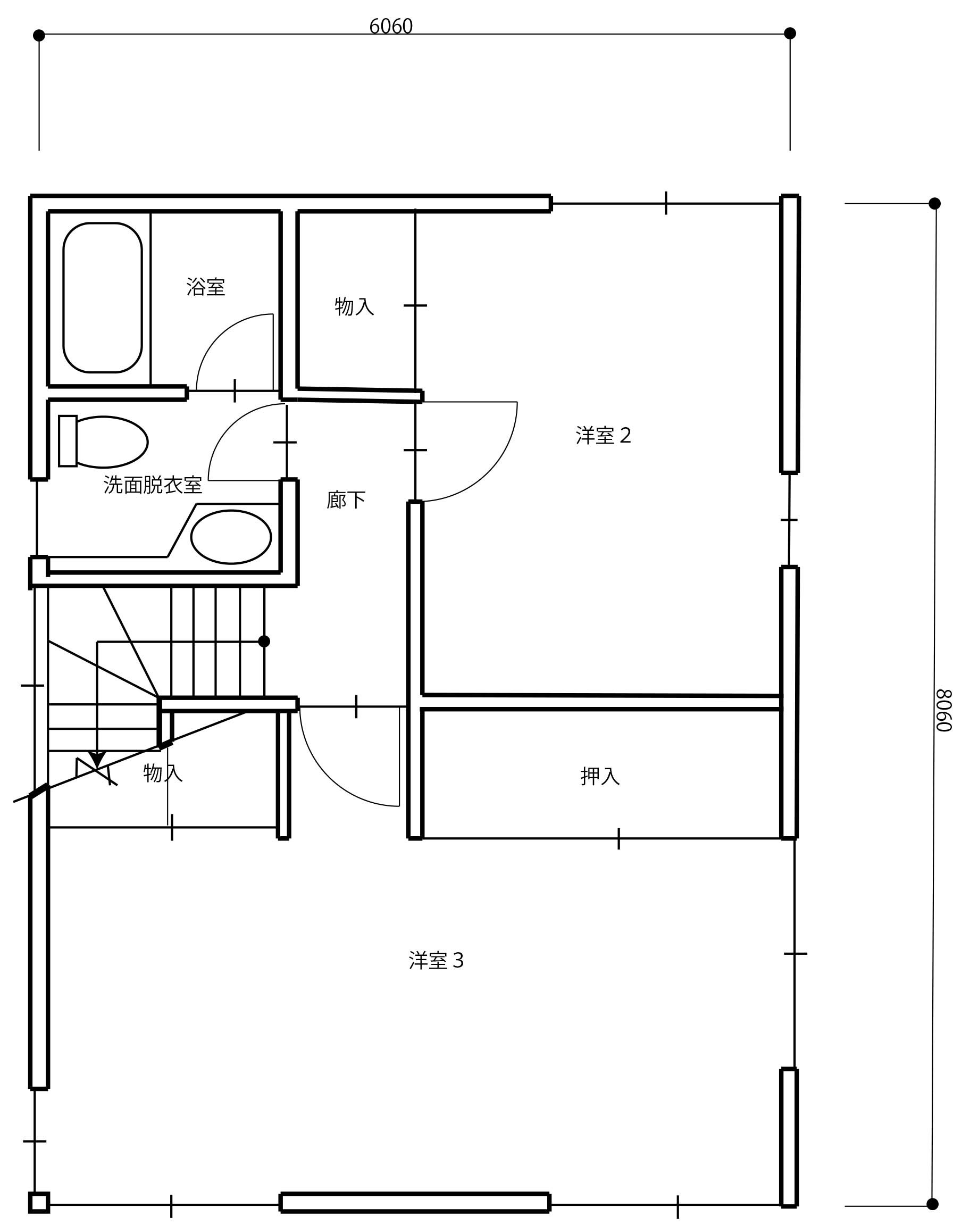
❖Before 2階 個室
:
南側の個室は将来2部屋に区切ることを想定していたような横長の部屋
*
主寝室だった洋室。
■その他
◇ウォークインクロゼット
:
北側に横長のウォークインクロゼットを配置。今まで使っていたタンスなどはここに置く。
◇2階廊下・階段
:
◇1階トイレ・2階トイレ洗面脱衣室
:


















